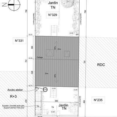
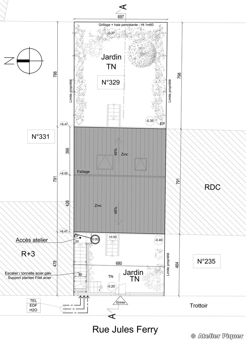
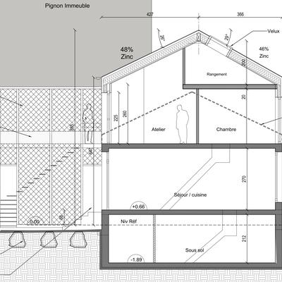
Surélévation d'une maison d'habitation rue Jules Ferry 93100 Montreuil

> Fiche technique

Surélévation d'une maison d'habitation

Fiche technique

Année de conception : 2021
Maîtrise d'ouvrage : Client privée
Entreprises impliquées dans le projet : Hervouet "charpente - ossature bois - bardage"
Catégorie : Maisons